AlquilerOficinasAlicante
AlquilerOficinasAlicante

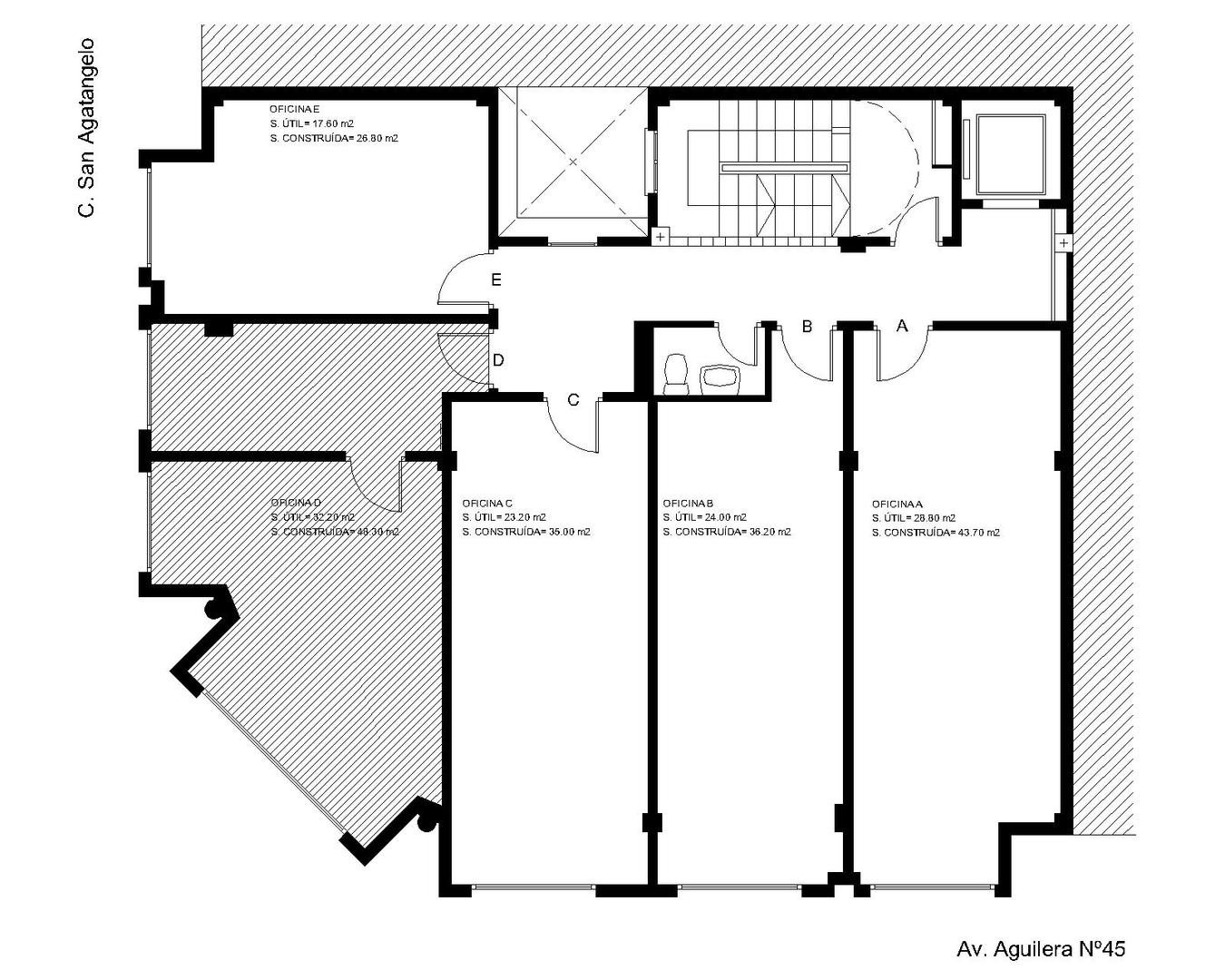
Tipos de Oficina

Oficina Tipos A,B y C

Plano de Oficina tipo

 

- Sup. útil : 23.20 m2

- Sup. Const.: 35.00 m2

 

Capacidad de 2 a 3 puestos de trabajo.

 

Vistas a Avenida.

 

Luminosa y confortable.

 

 

 

 

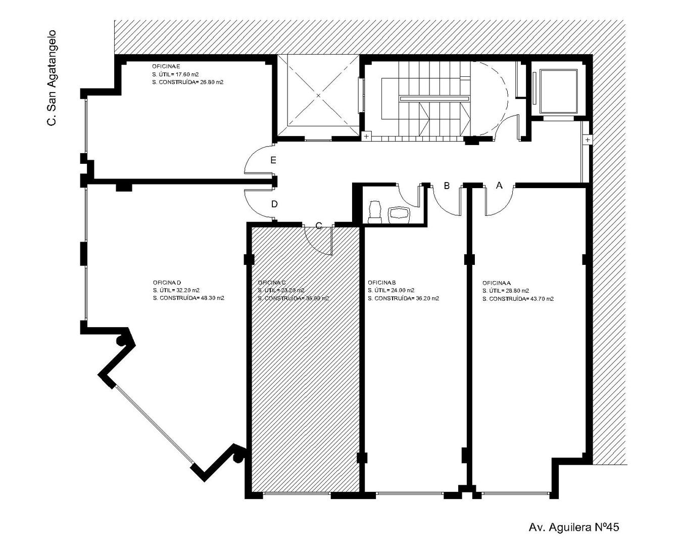
Oficina Tipo D

Plano de Oficina Tipo D

 

- Sup. útil: 32.20 m2

- Sup. útil: 48.30 m2

 

Capacidad variable de puestos de trabajo según distribución deseada.

 

Vistas a Avenida.

 

Amplia y luminosa.

 

 

 

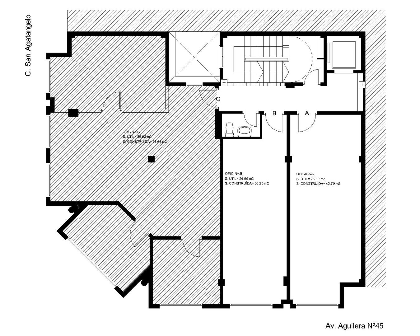
Oficina Grande

Plano de Oficina Grande

 

-Sup. útil: 80.62 m2

 

-Sup. Const.: 85.65 m2

 

Capacidad de puestos de trabajo variable según distribución deseada.

 

Vistas a la Avenida.

 

Amplia, versátil  y muy luminosa.

A O A

alquileroficinasalicante
Avda. Aguilera 36
03006 Alicante

 

Teléfono: 617390520

 

Fax: +34 965133039

Correo electrónico: info@alquileroficinasalicante.com

TABLÓN DE NOTICIAS

GRAN OPORTUNIDAD !!!! ENTREPLANTA COMPLETA EN ALQUILER. 130 m2. LLAMA Y TE INFORMAMOS.

GRAN OPORTUNIDAD !!!! 

FANTÁSTICA OFICINA EN CHAFLÁN EN ALQUILER.

90m2. LLAMA Y TE INFORMAMOS.

Versión para imprimir | Mapa del sitio
© Alquiler de oficinas Alicante